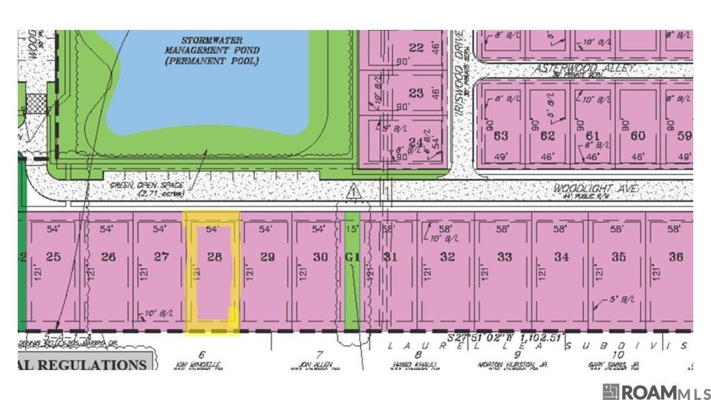
222 Woodlight Ave, Baton Rouge, LA

$279,000

Previous Next
Listing Courtesy Of: Capco Realty

0.18

Acres

About 222 Woodlight Ave

Benton at Magnolia Woods is a collection of single-family home sites located in the heart of Baton Rouge at the corner of Highland Road and Magnolia Woods Avenue offering a rare opportunity to create a family home in a vibrant, well-established neighborhood. With thoughtful design elements, premium construction, and a focus on community, Benton at Magnolia Woods represents the next evolution of Baton Rouge living. Streets and underground infrastructure currently under construction.

Features of 222 Woodlight Ave

MLS® # 2025017041
Price $279,000
Bathrooms 0.00
Acres 0.18
Type Land
Sub-Type Unimproved Land
Status Active

Community Information

Address 222 Woodlight Ave
Area EBR MLS Area 52
Subdivision The Benton At Magnolia Wood
City Baton Rouge
State LA
Zip Code 70808

Amenities

Utilities Cable Connected, Electricity Connected, Natural Gas Connected, Phone Connected
Is Waterfront No
Has Pool No

Interior

Fireplace No

Exterior

Lot Description Interior Lot, Views

School Information

District East Baton Rouge

Additional Information

Date Listed September 1st, 2025
Foreclosure No
Short Sale No
HOA Fees 2280

Listing Details

AgentClay Peterson
OfficeCapco Realty

Listing Map

Request a Showing

Provide a valid email address.
When would you like to view this property?